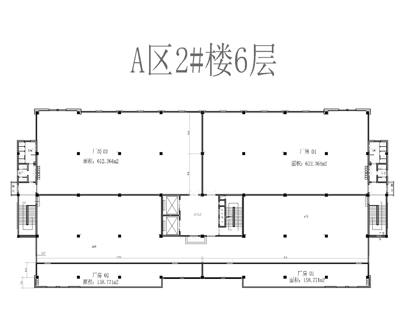
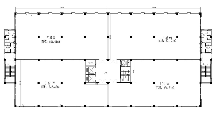
联系我们   Contact

 

 
 
3号楼